Prodej rodinného domu
Třinec - Konská
Prodej rodinného domu
Třinec - Konská
Představujeme vám rodinný dům se zahradou, který se nachází v klidné lokalitě města Třince-Konská. Tento dům vás okouzlí nejen svou polohou, ale i moderním interiérem, který prošel kompletní rekonstrukcí. Můžete se rovnou nastěhovat a začít si užívat pohodlí, který tento domov nabízí.
Kuchyň je srdcem tohoto domu, vybavená moderní kuchyňskou linkou v atraktivních barvách a vestavěnými spotřebiči, včetně velké myčky Philco, kvalitní trouby De Dietrich a mikrovlnné trouby stejné značky. Interiér je laděn do příjemných zemitých tónů, což vytváří hřejivou atmosféru, ve které se budete cítit jako doma.
Zahrada je prostorná a nabízí vzrostlé stromy, které zajišťují potřebné soukromí. Najdete zde vybudované posezení, zahradní domek pro úschovu zahradních potřeb, použitelný skleník a studnu s užitkovou vodou, což z ní činí ideální místo pro relaxaci a rodinné aktivity.
Dům se nachází v zastavěné části obce Konská, kde máte vše potřebné na dosah ruky. Zastávka autobusu je vzdálena pouhých 7 minut pěší chůze (470 m), základní a mateřská škola 10 minut (600 m), letní koupaliště 15 minut (900 m) a restaurace jen 1 km daleko. Do nejbližších měst, jako je Český Těšín (11 km, 16 min) a Třinec (4 km, 8 min), se dostanete snadno autem, a sjezd na dálnici je vzdálen pouze 4 km.
Základní informace:
Kolaudace r. 1970
Kompletní rekonstrukce r. 2025
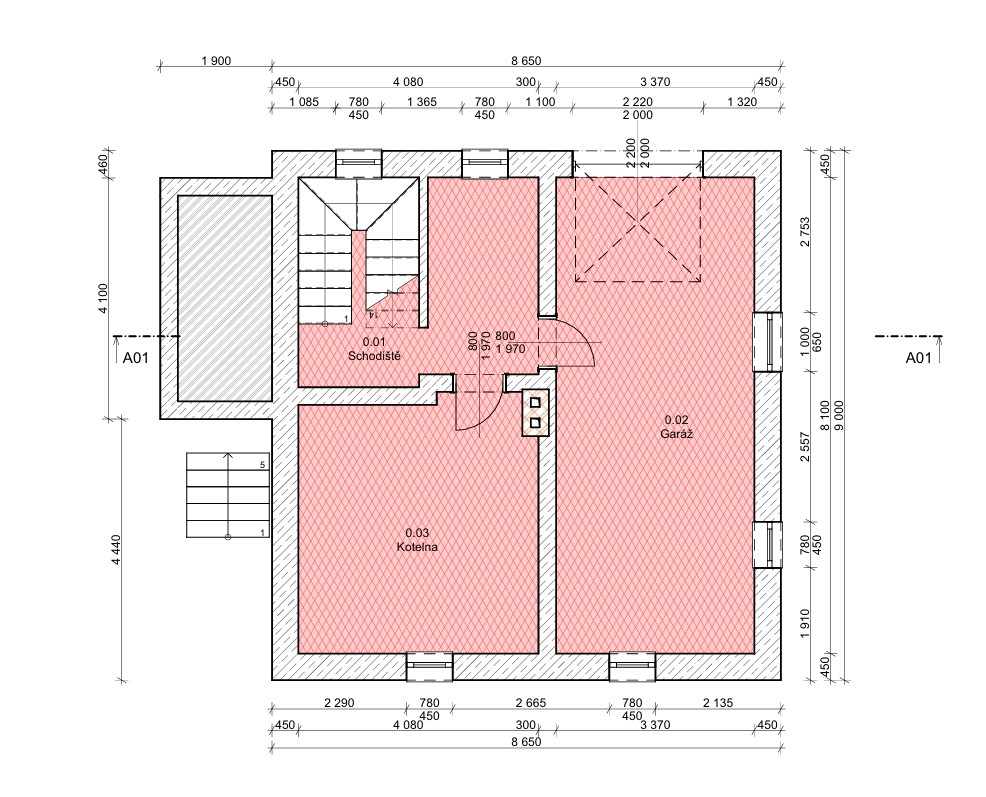
Zastavěná plocha domu 91 m²
Užitná plocha 133 m²
Zahrada o výměře 887 m²
Garáž má výměru 27 m²
Vytápění je řešeno podlahovým topením pomocí kotle s průtokovým ohřevem vody značky BAXI.
Dispozice domu:
1. PP schodiště, kotelna a garáž (58 m²)
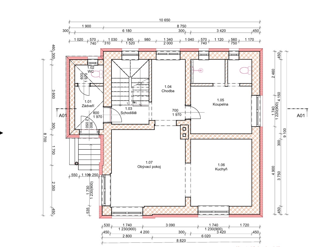
1. NP zádveří, WC, schodiště, chodba, koupelna s WC, obývací pokoj a kuchyň (65 m²)
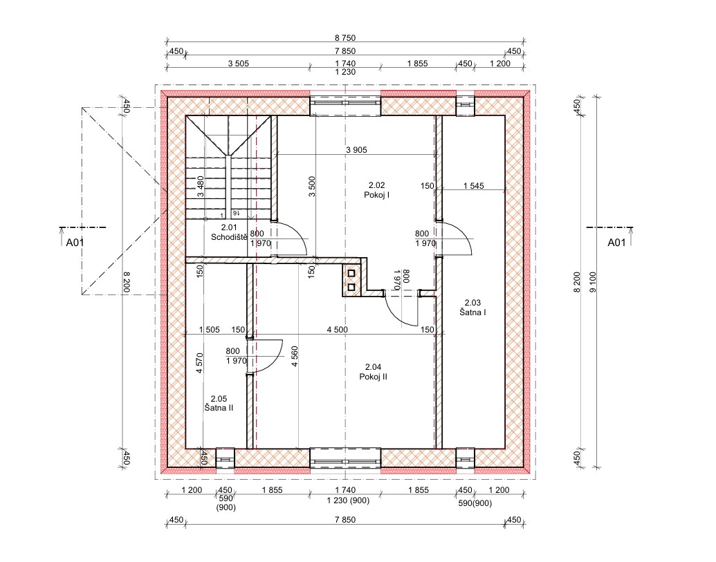
2. NP schodiště, šatna I, pokoj, šatna II, ložnice (68 m²)
Napojení domu:
elektřina, plyn,vodovod, kanalizace, což zajišťuje komfortní a bezproblémové bydlení.
Neváhejte a přijďte se podívat na tento krásný rodinný dům, který může být vaším novým domovem.
Najdeme pro vás i vhodné financování dle vašich potřeb prostřednictvím hypotečního specialisty s dlouholetou praxí.

1.PP

1.NP

2.NP

8.190.000,-Kč
Žiju svou prací !
Za každým prodejem nemovitosti se skrývá lidský příběh. A to je důvod, proč by nikdo neměl tak důležitý životní krok podceňovat. Ani prodávající, ani makléř.